Objektansicht
Objenansicht, Zufahrt
Objektansicht
Innenansicht Eingang
Innenansicht, Empfang
Innenansicht, Empfang
Innenansicht
Innenansicht
Innenansicht
Innenansicht
Innenansicht
Innenansicht
Grundriss, Untergeschoss
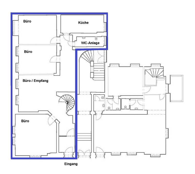
Grundriss, Erdgeschoss
Objektansicht Objenansicht, Zufahrt Objektansicht Innenansicht Eingang
Innenansicht, Empfang
+10

Präsenz zeigen, wo Dresden vorbeikommt – Bürofläche an der Waldschlößchenbrücke

Objektnr. extern
R_O 17840
Objektart
Büro / Praxis / Ausstellungsräume
Ort
01099 Dresden
Verfügbarkeit
01.07.2026
Nettokaltmiete/m²
12,00 € zzgl. gesetzl. MwSt.
Nebenkosten/m²
2,55 € zzgl. gesetzl. MwSt.
Stellplatzmiete
60,00 € zzgl. gesetzl. MwSt.
Stellplatzanzahl
4
Honorar
1,79 Nettokaltmieten inkl. gesetzl. MwSt.
Kaution
3 Bruttowarmmieten
<< Zurück zur Ergebnisliste
In einem unter Denkmalschutz stehenden Wohn- und Geschäftshaus, direkt an der stark frequentierten Waldschlösschenstraße, befindet sich diese repräsentative Gewerbefläche. Die markante Klinkerfassade mit eleganten Sandsteinverzierungen verleiht dem Objekt seinen ganz besonderen Charme.

Der separate Zugang zur Einheit erfolgt über wenige Stufen und ist vom Treppenhaus vollständig abgetrennt. Die hellen Räume sind modern saniert und bieten vielfältige Nutzungsmöglichkeiten.

Die Fläche erstreckt sich über zwei Ebenen: Im Erdgeschoss stehen rund 133 m², im Untergeschoss zusätzliche ca. 55 m² zur Verfügung. Beide Etagen sind durch eine Wendeltreppe miteinander verbunden.

Pkw-Stellplätze können im Innenhof separat angemietet werden.

Die Anbindung an den ÖPNV ist durch nahegelegene Haltestellen binnen weniger Gehminuten gewährleistet. Zusätzliche Parkmöglichkeiten für Sie und Ihre Kunden sind in den angrenzenden Seitenstraßen vorhanden.
Das Objekt befindet sich in der Radeberger Vorstadt / Preußisches Viertel, einem Villenviertel, welches sich durch Lebendigkeit und bauliche Attraktivität auszeichnet. Die Wohn- und Geschäftslage wurde durch zahlreiche Sanierungen und die Bebauung des Waldschlösschenareals aufgewertet. Es ist zentral in Nähe des Regierungsviertels und der Inneren Neustadt gelegen. Straßenbahnhaltestellen sind in unmittelbarer Nähe. Autobahn und Flughafen sind mit dem Auto in kurzer Zeit erreichbar. Durch die Waldschlößchenbrücke gibt es eine direkte Elbquerung, so dass der Anschluss an die Altstädter Seite gegeben ist.
großzügige Büroflächen auf zwei Etagen
WC-Anlage
stilvolle Wendeltreppe
Küchenbereich
vier Stellplätze können separat angemietet werden
Der Mietpreis ist als Basismietpreis zu verstehen und richtet sich nach Ausstattung sowie Vertragslaufzeit. Die Angaben verstehen sich zzgl. Nebenkosten und zzgl. gesetzl. Mehrwertsteuer. Die Vermieterin übt das Recht zur Optierung aus.

Bei Mietvertragsabschluss entsteht unsererseits gegenüber dem Mieter ein Honoraranspruch in Höhe von 1,79 Nettokaltmieten. Das Honorar versteht sich inkl. der gesetzlichen Mehrwertsteuer. Das Honorar ist verdient und fällig bei Mietvertragsabschluss.

Das Objekt ist ein Baudenkmal. Es liegt kein Energieausweis vor. Alle in diesem Angebot enthaltenen Angaben, Darstellungen und Preise stammen ausschließlich vom Eigentümer oder eines Dritten. Eine Haftung unseres Unternehmens hierfür ist ausgeschlossen. Irrtum und die zwischenzeitliche Vermietung der Gewerbeeinheit bleiben vorbehalten. Dieses Exposé ist eine Vorabinformation, als Rechtsgrundlage gilt allein der abgeschlossene Mietvertrag.

RICHERT & OERTEL IMMOBILIEN GMBH
Tiergartenstraße 46, 01219 Dresden
Tel.: +49 (351) 43 31 20, Fax.: +49 (351) 43 31 212, E-Mail: info@r-o.de
AG Dresden, HRB 31382, Geschäftsführer Michael Oertel, Raiko Ebert

Ihr Business verdient den besten Standort – wir finden ihn.

Sie sind
interessiert?

Für weitere Objektinformationen oder Besichtigungstermine nutzen Sie einfach unser Formular. Alles weitere übernehmen wir.

Alle mit * gekennzeichneten Felder sind Pflichtfelder.

Wenn Sie die im Kontaktformular eingegebenen Daten durch Klick auf den nachfolgenden Button übersenden, erklären Sie sich damit einverstanden, dass wir Ihre Angaben für die Beantwortung Ihrer Anfrage bzw. Kontaktaufnahme verwenden. Weitere Informationen zum Datenschutz finden Sie auch in der Datenschutzerklärung dieser Webseite.