Objektansicht
Objektansicht, vorne
Objektansicht, hinten
Objektansicht
Innenansicht
Innenansicht
Grundriss
Objektansicht Objektansicht, vorne Objektansicht, hinten Objektansicht
Innenansicht
+3

Synergieeffekte nutzen - Barrierefreie Gewerbeeinheit im O.D.C.!

Objektnr. extern
R_O 18804
Objektart
Läden/SB-Märkte
Ort
01219 Dresden
Verfügbarkeit
ab sofort
Verkaufsfläche
633,00 m²
Nettokaltmiete/m²
8,00 € zzgl. gesetzl. MwSt.
Nebenkosten/m²
3,00 € zzgl. gesetzl. MwSt.
Honorar
laufzeitabhängig inkl. gesetzl. MwSt.
Kaution
3 Bruttowarmmieten
<< Zurück zur Ergebnisliste
Die angebotene Gewerbefläche befindet sich in einem bekannten Fachmarktzentrum im Stadtteil Dresden-Strehlen. Das Center wurde 2001 errichtet und ist täglicher Anlaufpunkt für die zahlreichen Anwohner des dicht besiedelten Stadtgebietes.

Im Center ist ein ausgewogener Branchenmix aus dem Handels- und Dienstleistungsbereich für den täglichen Bedarf vorzufinden. So ist zum Beispiel der Ankermieter Kaufland neben regionalen- und überregionalen Filialisten und Einzelhändlern am Standort ansässig.

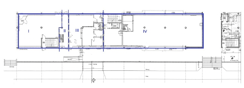
Die hier angebotene Fläche umfasst eine ca. 633 m² große Verkaufsfläche im Erdgeschoss, welche in bis zu vier Einheiten teilbar ist. Die Einheiten können wie folgt getrennt werden:
Einheit I: ca. 125 m²
Einheit II: ca. 45 m²
Einheit III: ca. 120 m²
Einheit IV: ca. 343 m².

Durch den rechteckig gestalteten Grundriss ist ein übersichtliches Ladenlayout möglich. Die großzügigen Schaufensterfronten bieten optimale Werbe- und Darstellungsmöglichkeiten.

Über den vakanten Ladenflächen befindet sich eine Seniorenresidenz. Hier können Synergieeffekte mit ergänzenden Konzepten und Dienstleistungen ideal umgesetzt werden.
Das Objekt befindet sich in Dresden-Strehlen. Der nahe der Dresdner Innenstadt gelegene Stadtteil ist durch Hochhäuser aber auch zweigeschossige Bauten mit einem hohen Grünanteil geprägt. Haltestellen für öffentliche Verkehrsmittel (S-Bahn, Bus und Straßenbahn) existieren unweit des Objektes. Alle infrastrukturellen Einrichtungen wie Schulen, Kindergärten und ÖPNV-Anschluss sind in nächster Nähe. In nur wenigen Autominuten erreicht man die B 172 oder das Stadtzentrum.
als Laden und/oder Büro nutzbar
Gewerbefläche befindet sich in frequentierter Lage des Einkaufs-Centers O.D.C.
großzügige Schaufensterfronten
Sanitäranlagen
behindertengerechter, barrierefreier Ein-/ Ausgang
kostenfreie Stellplätze stehen direkt vor dem Objekt zur Verfügung
Der Mietpreis ist als Basismietpreis zu verstehen und richtet sich nach Ausstattung sowie Vertragslaufzeit. Die Angaben verstehen sich zzgl. Nebenkosten und zzgl. gesetzl. Mehrwertsteuer.

Bei Mietvertragsabschluss entsteht unsererseits gegenüber dem Mieter ein Honoraranspruch in Höhe von:
Honorarfrei: ab einer Mietvertragslaufzeit von 60 Monaten
1,19 Nettokaltmieten: bei einer Mietvertragslaufzeit ab 25 bis 59 Monaten
2,38 Nettokaltmieten: bei einer Mietvertragslaufzeit bis 24 Monaten
Das Honorar versteht sich inkl. der gesetzlichen Mehrwertsteuer. Das Honorar ist verdient und fällig bei Mietvertragsabschluss.

Der aktuelle Energieausweis liegt vor. Alle in diesem Angebot enthaltenen Angaben, Darstellungen und Preise stammen ausschließlich vom Eigentümer oder eines Dritten. Eine Haftung unseres Unternehmens hierfür ist ausgeschlossen. Irrtum und die zwischenzeitliche Vermietung der Gewerbeeinheit bleiben vorbehalten. Dieses Exposé ist eine Vorabinformation, als Rechtsgrundlage gilt allein der abgeschlossene Mietvertrag.

RICHERT & OERTEL IMMOBILIEN GMBH
Tiergartenstraße 46, 01219 Dresden
Tel.: +49 (351) 43 31 20, Fax.: +49 (351) 43 31 212, E-Mail: info@r-o.de
AG Dresden, HRB 31382, Geschäftsführer Michael Oertel, Raiko Ebert
Bei Mietvertragsabschluss entsteht unsererseits gegenüber dem Mieter ein Honoraranspruch in Höhe von:
Honorarfrei: ab einer Mietvertragslaufzeit von 60 Monaten
1,19 Nettokaltmieten: bei einer Mietvertragslaufzeit ab 25 bis 59 Monaten
2,38 Nettokaltmieten: bei einer Mietvertragslaufzeit bis 24 Monaten
Das Honorar versteht sich inkl. der gesetzlichen Mehrwertsteuer. Das Honorar ist verdient und fällig bei Mietvertragsabschluss.

Ihr Business verdient den besten Standort – wir finden ihn.

Sie sind
interessiert?

Für weitere Objektinformationen oder Besichtigungstermine nutzen Sie einfach unser Formular. Alles weitere übernehmen wir.

Alle mit * gekennzeichneten Felder sind Pflichtfelder.

Wenn Sie die im Kontaktformular eingegebenen Daten durch Klick auf den nachfolgenden Button übersenden, erklären Sie sich damit einverstanden, dass wir Ihre Angaben für die Beantwortung Ihrer Anfrage bzw. Kontaktaufnahme verwenden. Weitere Informationen zum Datenschutz finden Sie auch in der Datenschutzerklärung dieser Webseite.