Das Objekt befindet sich in einem Gewerbegebiet in Ottendorf-Okrilla im Ortsteil Medingen. Zu der Gewerbeimmobilie gehört ein zweigeschossiges Verwaltungsgebäude und fünf Lager- und Produktionshallen.
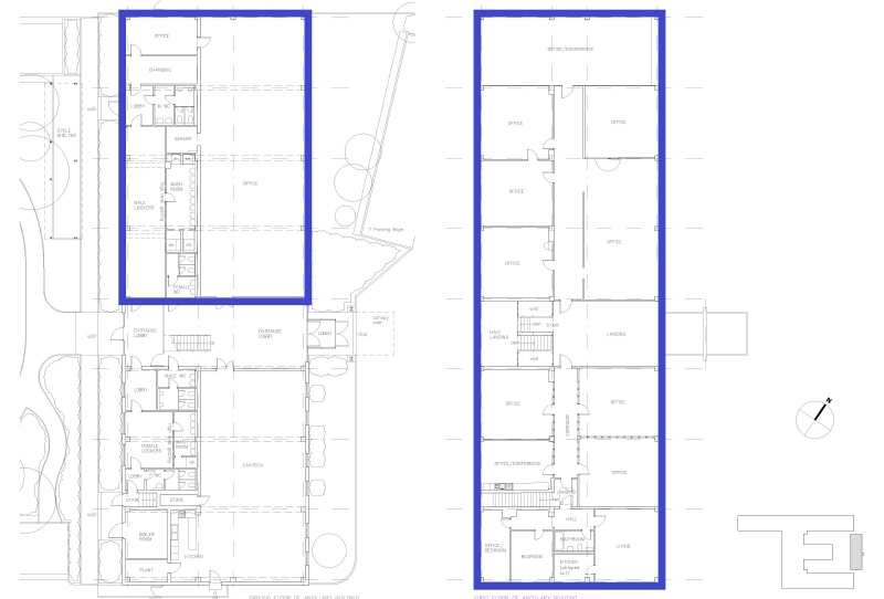
Die derzeit vakante Bürofläche erstreckt sich über ca. 896 m² im Erdgeschoss und im 1. Obergeschoss des Verwaltungsgebäudes.
Auf dem Gelände stehen außerdem PKW-Stellplätze zur separaten Anmietung zur Verfügung.
Die Gesamtgröße des Gewerbegebietes beträgt ca. 15 ha. Das Nachbargebäude wird durch die Gehmeyr GmbH genutzt. Namhafte Mieter wie DHL, Mercedes Benz und lokale Mieter wie Franke Maschinenbau, C+C Krug uvm. sind hier zu finden. Die Entfernung zum Oberzentrum Dresden beträgt ca. 20 km.
Ottendorf-Okrilla befindet sich nördlich von Dresden und verfügt über eine ausgezeichnete Verkehrsanbindung. Die Bundesstraße 97, die Autobahn 4 und 13 sind in wenigen Minuten erreichbar. Über diese Zubringer kann sehr schnell die Autobahn 14 und 17 erreicht werden.
Der Mietpreis ist als Basismietpreis zu verstehen und richtet sich nach Ausstattung sowie Vertragslaufzeit. Die Angaben verstehen sich zzgl. Nebenkosten und zzgl. gesetzl. Mehrwertsteuer.
Das Objekt wird honorarfrei angeboten.
Der aktuelle Energieausweis liegt vor. Alle in diesem Angebot enthaltenen Angaben, Darstellungen und Preise stammen ausschließlich vom Eigentümer oder eines Dritten. Eine Haftung unseres Unternehmens hierfür ist ausgeschlossen. Irrtum und die zwischenzeitliche Vermietung der Gewerbeeinheit bleiben vorbehalten. Dieses Exposé ist eine Vorabinformation, als Rechtsgrundlage gilt allein der abgeschlossene Mietvertrag.
Ihr Business verdient den besten Standort – wir finden ihn.
Sie sind interessiert?
Für weitere Objektinformationen oder Besichtigungstermine nutzen Sie einfach unser Formular. Alles weitere übernehmen wir.
Datenschutzeinstellungen
Auf unserer Webseite werden Cookies verwendet. Einige davon werden zwingend benötigt, während es uns andere ermöglichen, Ihre Nutzererfahrung auf unserer Webseite zu verbessern.
Essentiell
Essentielle Cookies werden für grundlegende Funktionen der Webseite benötigt. Dadurch ist gewährleistet, dass die Webseite einwandfrei funktioniert.
Name
QiCookieConsent
Anbieter
Enthält die vom Benutzer zugestimmten Cookie-Gruppen und prüft diese beim Seitenaufruf.
Zweck
Lebenszeit
1 Jahr
Statistik
Diese Gruppe beinhaltet alle Skripte für analytisches Tracking und zugehörige Cookies. Zudem kann es die allgemeine Performance der Besucher verbessern.
Name
_ga
Anbieter
Google Analytics
Zweck
Registriert eine eindeutige ID, die verwendet wird, um statistische Daten dazu, wie der Besucher die Website nutzt, zu generieren.
Lebenszeit
1 Jahr
Name
_gid
Anbieter
Google Analytics
Zweck
Registriert eine eindeutige ID, die verwendet wird, um statistische Daten dazu, wie der Besucher die Website nutzt, zu generieren.
Lebenszeit
1 Tag
Name
_gat
Anbieter
Google Analytics
Zweck
Wird von Google Analytics verwendet, um die Anforderungsrate einzuschränken.