Objektansicht
Rolltore
Parkflächen
Empfangshalle
Glaskuppe
Grundriss mit ca 547,17 qm
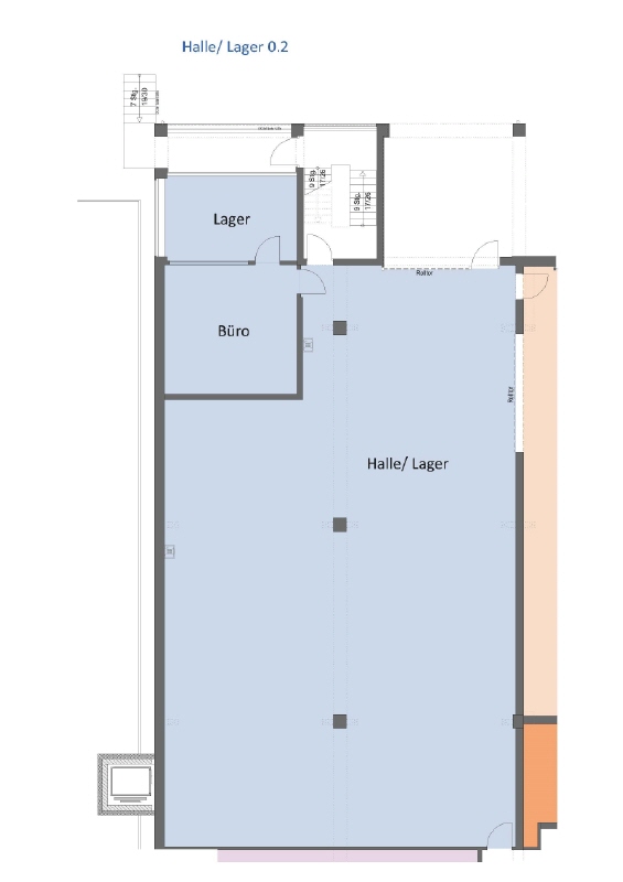
Grundriss mit ca 353,04 qm
Objektansicht Rolltore Parkflächen Empfangshalle
Glaskuppe
+3

Moderne Lager- und Hallenflächen im Gewerbegebiet Kesselsdorf

Objektnr. extern
R_O 22148
Objektart
Prod./ Lager / Gewerbehallen
Ort
01723 Wilsdruff
Verfügbarkeit
nach Absprache
Nettokaltmiete/m²
6,50 € zzgl. gesetzl. MwSt.
Stellplatzmiete
40,00 € zzgl. gesetzl. MwSt.
Honorar
1,19 Nettokaltmieten inkl. gesetzl. MwSt.
Kaution
3 Bruttowarmmieten
Art des Energieausweises
Verbrauchsausweis
Baujahr
1993
Gültig bis
19.11.2029
Energiekennwert Strom
1.00 kWh/(m²*a)
Energiekennwert Wärme
89.00 kWh/(m²*a)
<< Zurück zur Ergebnisliste
Wir bieten Ihnen attraktive Lager- und Hallenflächen im modernen Büro- und Lagergebäude in Wilsdruff, im renommierten Gewerbegebiet Kesselsdorf.

Die zur Verfügung stehenden Flächen umfassen jeweils eine große Halle, die ideal für Produktion, Lagerung oder Logistik ist und über einen direkten Ausgang nach draußen verfügt, der für den bequemen Warenumschlag sorgt. Zusätzlich gibt es mindestens ein modernes, helles Büro, das ideale Arbeitsbedingungen bietet und eine effiziente Organisation ermöglicht. Verschiedene kleinere Lagerräume sind perfekt für die flexible Lagerung und Verwaltung von Materialien oder Waren unterschiedlicher Art. Die beiden Flächen liegen direkt nebeneinander und können bei Bedarf auch zusammen angemietet werden.

Fläche 0.1
Erdgeschoss und Zwischengeschoss
ca. 547,17 m²

Fläche 0.2
Erdgeschoss
ca. 353,04 m²

Für weitere Informationen oder zur Vereinbarung eines Besichtigungstermins stehen wir Ihnen gerne zur Verfügung.
Das Gewerbegebiet Kesselsdorf liegt in der Stadt Wilsdruff im Landkreis Sächsische Schweiz-Osterzgebirge in Sachsen, Deutschland. Es befindet sich westlich von Dresden, etwa 10 Kilometer vom Stadtzentrum entfernt, und ist hervorragend über die Bundesautobahnen A4 und A17 erreichbar, die in unmittelbarer Nähe verlaufen. Die A4 (Anschlussstelle Wilsdruff) und die A17 (Anschlussstelle Dresden-Gorbitz) bieten eine ausgezeichnete Verkehrsanbindung für den Güter- und Personenverkehr. Zudem sind die Bundesstraßen B173 und B170 ebenfalls in der Nähe und ermöglichen weitere Verbindungen zu den umliegenden Gemeinden und Städten. Der öffentliche Verkehr ist durch Buslinien gut abgedeckt, die das Gewerbegebiet mit Dresden und anderen umliegenden Ortschaften verbinden.

Das Gewerbegebiet ist umgeben von anderen wirtschaftlich bedeutenden Regionen und profitiert von der Nähe zur Landeshauptstadt Dresden, einem wichtigen wirtschaftlichen und kulturellen Zentrum. In der Umgebung befinden sich verschiedene Dienstleistungsangebote, Einzelhandelsgeschäfte und gastronomische Einrichtungen, die den täglichen Bedarf der Beschäftigten decken können. Das Gewerbegebiet Kesselsdorf ist ein wichtiger Standort für Unternehmen verschiedener Branchen, darunter Logistik, Produktion und Handel. Die Nähe zu Dresden bietet Unternehmen den Vorteil, in der Nähe eines großen Marktes und einer starken wirtschaftlichen Infrastruktur zu operieren.

Kesselsdorf selbst bietet eine gute Wohnqualität mit einer Mischung aus ländlicher Idylle und städtischer Nähe. Es gibt mehrere Grünflächen und Erholungsmöglichkeiten in der näheren Umgebung, die zur Lebensqualität der Bewohner und Arbeitnehmer beitragen.
Der Mietpreis ist als Basismietpreis zu verstehen und richtet sich nach Ausstattung sowie Vertragslaufzeit. Die Angaben verstehen sich zzgl. Nebenkosten und zzgl. gesetzl. Mehrwertsteuer.

Bei Mietvertragsabschluss entsteht unsererseits gegenüber dem Mieter ein Honoraranspruch in Höhe von 1,19 Nettokaltmieten. Das Honorar versteht sich inkl. der gesetzlichen Mehrwertsteuer. Das Honorar ist verdient und fällig bei Mietvertragsabschluss.

Der aktuelle Energieausweis liegt vor. Alle in diesem Angebot enthaltenen Angaben, Darstellungen und Preise stammen ausschließlich vom Eigentümer oder eines Dritten. Eine Haftung unseres Unternehmens hierfür ist ausgeschlossen. Irrtum und die zwischenzeitliche Vermietung der Gewerbeeinheit bleiben vorbehalten. Dieses Exposé ist eine Vorabinformation, als Rechtsgrundlage gilt allein der abgeschlossene Mietvertrag.

RICHERT & OERTEL IMMOBILIEN GMBH
Tiergartenstraße 46, 01219 Dresden
Tel.: +49 (351) 43 31 20, Fax.: +49 (351) 43 31 212, E-Mail: info@r-o.de
AG Dresden, HRB 31382, Geschäftsführer Michael Oertel, Raiko Ebert
Bei Mietvertragsabschluss entsteht unsererseits gegenüber dem Mieter ein Honoraranspruch in Höhe von 1,19 Nettokaltmieten. Das Honorar versteht sich inkl. der gesetzlichen Mehrwertsteuer. Das Honorar ist verdient und fällig bei Mietvertragsabschluss.

Ihr Business verdient den besten Standort – wir finden ihn.

Sie sind
interessiert?

Für weitere Objektinformationen oder Besichtigungstermine nutzen Sie einfach unser Formular. Alles weitere übernehmen wir.

Alle mit * gekennzeichneten Felder sind Pflichtfelder.

Wenn Sie die im Kontaktformular eingegebenen Daten durch Klick auf den nachfolgenden Button übersenden, erklären Sie sich damit einverstanden, dass wir Ihre Angaben für die Beantwortung Ihrer Anfrage bzw. Kontaktaufnahme verwenden. Weitere Informationen zum Datenschutz finden Sie auch in der Datenschutzerklärung dieser Webseite.