Objektansicht
Innenansicht
Innenansicht
Innenansicht
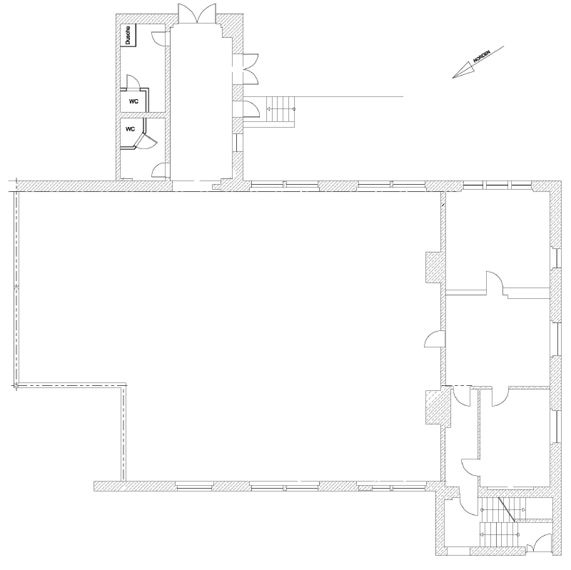
Grundriss
Objektansicht Innenansicht Innenansicht Innenansicht
Grundriss
+1

Flexibel nutzbar: Von der Lagerfläche zum modernen Büro - Ihre Ideen verwirklichen!

Objektnr. extern
R_O 22550
Objektart
Lagerhalle
Ort
01445 Radebeul
Verfügbarkeit
ab sofort
Nutzfläche
346,35 m²
Nettokaltmiete/m²
5,70 € zzgl. gesetzl. MwSt.
Nebenkosten/m²
490,00 € zzgl. gesetzl. MwSt.
Stellplatzanzahl
6
Honorar
honorarfrei
Kaution
3 Bruttowarmmieten
Art des Energieausweises
Bedarfsausweis
Baujahr
1969
Gültig bis
13.09.2033
Energiekennwert Strom
9.40 kWh/(m²*a)
Energiekennwert Wärme
272.30 kWh/(m²*a)
<< Zurück zur Ergebnisliste
Die angebotene Mietfläche bietet vielfältige Nutzungsmöglichkeiten. Ursprünglich als Lagerfläche konzipiert, lässt sich die Immobilie flexibel an Ihre Anforderungen anpassen. Eine Umgestaltung zur modernen Bürofläche ist auch problemlos realisierbar.

Dank großzügiger Raumzuschnitte und einer soliden baulichen Basis bietet das Objekt ideale Voraussetzungen für kreative Bürolandschaften, Arbeitsplätze mit Fokus auf Funktionalität oder eine Kombination aus Büro- und Lagerflächen.

Die Laufzeit des Mietvertrages beträgt mindestens drei Jahre. Danach beträgt die Kündigungsfrist drei Monate zum Ende eines jeden Kalenderhalbjahres.
Die Immobilie überzeugt durch ihre verkehrsgünstige Lage in Radebeul und bietet eine ideale Anbindung an das regionale Verkehrsnetz. Kunden, Partner und Mitarbeiter profitieren von einer guten Erreichbarkeit und einem dynamischen Standort in einer aufstrebenden Region.
Der Mietpreis ist als Basismietpreis zu verstehen und richtet sich nach Ausstattung sowie Vertragslaufzeit. Die Angaben verstehen sich zzgl. Nebenkosten und zzgl. gesetzl. Mehrwertsteuer.

Das Objekt wird honorarfrei angeboten.

Der aktuelle Energieausweis liegt vor. Alle in diesem Angebot enthaltenen Angaben, Darstellungen und Preise stammen ausschließlich vom Eigentümer oder eines Dritten. Eine Haftung unseres Unternehmens hierfür ist ausgeschlossen. Irrtum und die zwischenzeitliche Vermietung der Gewerbeeinheit bleiben vorbehalten. Dieses Exposé ist eine Vorabinformation, als Rechtsgrundlage gilt allein der abgeschlossene Mietvertrag.

RICHERT & OERTEL IMMOBILIEN GMBH
Tiergartenstraße 46, 01219 Dresden
Tel.: +49 (351) 43 31 20, Fax.: +49 (351) 43 31 212, E-Mail: info@r-o.de
AG Dresden, HRB 31382, Geschäftsführer Michael Oertel, Raiko Ebert
Das Objekt wird honorarfrei angeboten.

Ihr Business verdient den besten Standort – wir finden ihn.

Sie sind
interessiert?

Für weitere Objektinformationen oder Besichtigungstermine nutzen Sie einfach unser Formular. Alles weitere übernehmen wir.

Alle mit * gekennzeichneten Felder sind Pflichtfelder.

Wenn Sie die im Kontaktformular eingegebenen Daten durch Klick auf den nachfolgenden Button übersenden, erklären Sie sich damit einverstanden, dass wir Ihre Angaben für die Beantwortung Ihrer Anfrage bzw. Kontaktaufnahme verwenden. Weitere Informationen zum Datenschutz finden Sie auch in der Datenschutzerklärung dieser Webseite.