Objektansicht
Objektansicht
Objektansicht
Objektansicht
Objektansicht
Objektansicht
Grundriss Erdgeschoss
Grundriss 1.Obergeschoss
Grundriss 4.Obergeschoss
Objektansicht Objektansicht Objektansicht Objektansicht
Objektansicht
+5

Einmalige Chance: Bürofläche im zentralen World Trade Center zu vermieten

Objektnr. extern
R_O 22815
Objektart
Büro
Ort
01067 Dresden
Verfügbarkeit
nach Vereinbarung
Nettokaltmiete/m²
13,00 € zzgl. gesetzl. MwSt.
Stellplatzmiete
75,00 € zzgl. gesetzl. MwSt.
Honorar
honorarfrei
Kaution
3 Bruttowarmmieten
Art des Energieausweises
Verbrauchsausweis
Baujahr
1997
Gültig bis
29.06.2028
Energiekennwert Strom
94.00 kWh/(m²*a)
Energiekennwert Wärme
81.00 kWh/(m²*a)
<< Zurück zur Ergebnisliste
Die hier angebotenen Mietflächen befinden sich im World Trade Center, welches insgesamt ca. 90.000 m² sowie ca. 1.000 Stellplätze in der Tiefgarage umfasst und somit zu den größten und bekanntesten Büroimmobilien der Landeshauptstadt Dresden zählt. Das namenhafte Objekt mit seiner markanten Architektur steht für Moderne.

Es beherbergt zahlreiche namhafte Unternehmen diverser Branchen, Ärzte, Einzelhändler, ein Sportstudio, Gastronomieeinrichtungen, ein Theater, ein Hotel und viele mehr. Ein 24h besetzter Empfang sowie ein Conference Center, welches für Events von bis zu 90 Personen ebenfalls anmietbar ist, bieten weiteren Komfort für ansässige Unternehmen.

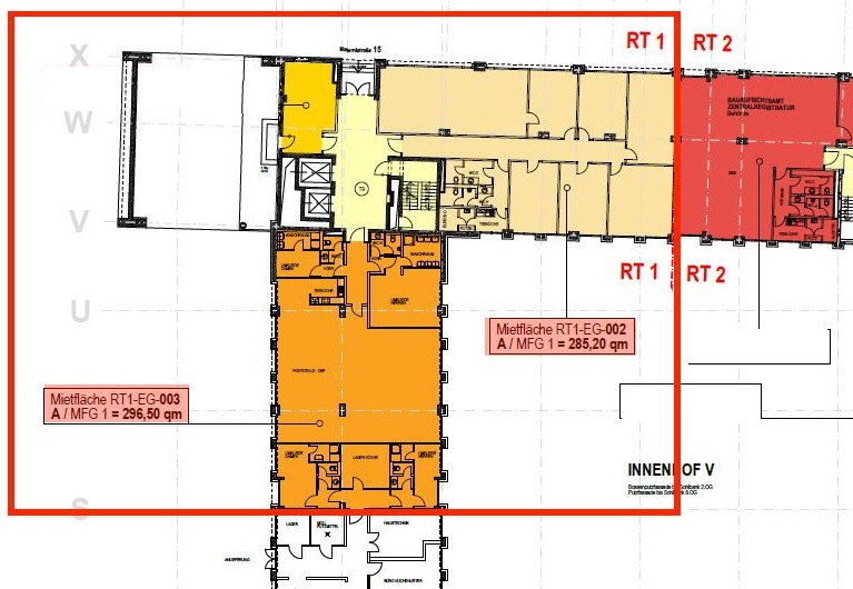
Folgende Flächen sind zu vermieten:
EG-002: 297,25 m² (inkl. 12,05 m² GF*)
EG-003: 309,03 m² (inkl. 12,53 GF*)
1.OG-001+002: 545,88 m² (inkl. 55,48 m² GF*)
1.OG-003: 330,60 m² (inkl. 33,60 m² GF*)
4.OG-001: 226,99 m² (inkl. 22,93 m² GF*)
4.OG-002: 325,01 m² (inkl. 32,83 m² GF*)

* Gemeinschaftsfläche
Nutzerspezifische Anforderungen können in Abstimmung mit dem Eigentümer berücksichtigt werden.
Das World Trade Center befindet sich in zentraler Lage und verfügt über eine optimale Verkehrsanbindung. Es ist in der unmittelbaren Nähe der Altstadt mit ihren historischen Stätten, Ministerien, Rathaus und Kultur- und Einkaufstätten. Sowohl der Dresdner Flughafen als auch die Autobahn sind mit dem Auto in ca. 15 Minuten erreichbar. Ein eigener Taxistand, mehrere Straßenbahnlinien und eine Regionalbahnhaltestelle sorgen für Mobilität auch ohne Auto. Die historische Innenstadt und der Hauptbahnhof liegen wenige Gehminuten entfernt.
Fläche enthält klimatische Kühlung
Sonnenschutz vorhanden
Ausbau nach WTC-Standard
nutzerspezifische Umbauten in Absprache mit dem Eigentümer möglich
Stellplätze sind in der WTC-Tiefgarage verfügbar
barrierefreie Zugänge
Personenaufzüge vorhanden
LED-Beleuchtung
Teeküche
Der Mietpreis ist als Basismietpreis zu verstehen und richtet sich nach Ausstattung sowie Vertragslaufzeit. Die Angaben verstehen sich zzgl. Nebenkosten und zzgl. gesetzl. Mehrwertsteuer.

Das Objekt wird honorarfrei angeboten.

Der aktuelle Energieausweis liegt vor. Alle in diesem Angebot enthaltenen Angaben, Darstellungen und Preise stammen ausschließlich vom Eigentümer oder eines Dritten. Eine Haftung unseres Unternehmens hierfür ist ausgeschlossen. Irrtum und die zwischenzeitliche Vermietung der Gewerbeeinheit bleiben vorbehalten. Dieses Exposé ist eine Vorabinformation, als Rechtsgrundlage gilt allein der abgeschlossene Mietvertrag.

RICHERT & OERTEL IMMOBILIEN GMBH
Tiergartenstraße 46, 01219 Dresden
Tel.: +49 (351) 43 31 20, Fax.: +49 (351) 43 31 212, E-Mail: info@r-o.de
AG Dresden, HRB 31382, Geschäftsführer Michael Oertel, Raiko Ebert
Das Objekt wird honorarfrei angeboten.

Ihr Business verdient den besten Standort – wir finden ihn.

Sie sind
interessiert?

Für weitere Objektinformationen oder Besichtigungstermine nutzen Sie einfach unser Formular. Alles weitere übernehmen wir.

Alle mit * gekennzeichneten Felder sind Pflichtfelder.

Wenn Sie die im Kontaktformular eingegebenen Daten durch Klick auf den nachfolgenden Button übersenden, erklären Sie sich damit einverstanden, dass wir Ihre Angaben für die Beantwortung Ihrer Anfrage bzw. Kontaktaufnahme verwenden. Weitere Informationen zum Datenschutz finden Sie auch in der Datenschutzerklärung dieser Webseite.