Diese großzügige Kalt-Lagerhalle bietet ideale Voraussetzungen für Logistikunternehmen, Speditionen und gewerbliche Nutzer, die Wert auf effiziente Warenumschlagsprozesse legen.
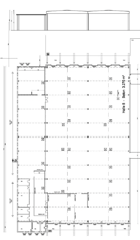
Es stehen insgesamt drei Lagerhallen mit einer Gesamtnutzfläche von ca. 10.125m² auf dem Grundstück zur Vermietung. Je nach Bedarf können diese zusammen oder separat (Halle 7: ca. 5.960 m², Halle 8: ca. 3.270 m² und Halle 9: ca. 895 m²) angemietet werden. Ergänzend dazu bietet eine umlaufende Freifläche von etwa 1.500 m² zusätzliche Nutzungsmöglichkeiten für Lagerung, Rangier- oder Stellflächen.
Dank attraktiver Mietkonditionen und der sofortigen Verfügbarkeit bietet sich Unternehmen die Möglichkeit, kurzfristig und flexibel auf veränderte Anforderungen zu reagieren. Die hervorragende Anbindung an die Autobahn sowie an wichtige Hauptverkehrsstraßen gewährleistet eine optimale Erreichbarkeit und erleichtert den reibungslosen Waren- und Lieferverkehr. Zudem sorgen die großzügig geschnittenen Flächen und die durchdachte Andienung für effiziente Arbeitsabläufe und ein angenehmes Arbeitsumfeld.
Das Objekt befindet sich im Südosten der sächsischen Landeshauptstadt, im Gewerbegebiet Sporbitz. Das Gewerbegebiet ist Teil eines modernen, interkommunalen Areals, das sich durch großzügige Flächen, flexible Nutzungsmöglichkeiten und eine sehr gute technische Erschließung auszeichnet. Vor Ort stehen verschiedene Hallen- und Freiflächen zur Verfügung, die sich optimal für Logistik, Lagerhaltung und Produktion eignen.
Die Anbindung an die B 172 sowie die A 17 sind gut. Der ÖPNV mit S-Bahn-Station Dresden-Zschachwitz sowie Bus und Bahn in Heidenau sind fußläufig erreichbar. Einkaufsmöglichkeiten befinden sich in der Nähe. Das Industriegebiet bietet großflächige Gewerbe- und Lagerflächen sowie moderne Produktionsanlagen.
Kalthalle
mehrere Rampen für schnellen Warenumschlag und effiziente Be- und Entladung
umlaufende Freifläche, ideal für Stellplätze, Rangier- oder Abstellflächen
solide Industriehalle aus ca. 1991, gepflegter Allgemeinzustand
großzügige Zufahrtsmöglichkeiten für Lkw und Lieferverkehr
Der Mietpreis ist als Basismietpreis zu verstehen und richtet sich nach Ausstattung sowie Vertragslaufzeit. Die Angaben verstehen sich zzgl. Nebenkosten und zzgl. gesetzl. Mehrwertsteuer.
Bei Mietvertragsabschluss entsteht unsererseits gegenüber dem Mieter ein Honoraranspruch in Höhe von 2,38 Nettokaltmieten. Das Honorar versteht sich inkl. der gesetzlichen Mehrwertsteuer. Das Honorar ist verdient und fällig bei Mietvertragsabschluss.
Der aktuelle Energieausweis wird nachgereicht. Alle in diesem Angebot enthaltenen Angaben, Darstellungen und Preise stammen ausschließlich vom Eigentümer oder eines Dritten. Eine Haftung unseres Unternehmens hierfür ist ausgeschlossen. Irrtum und die zwischenzeitliche Vermietung der Gewerbeeinheit bleiben vorbehalten. Dieses Exposé ist eine Vorabinformation, als Rechtsgrundlage gilt allein der abgeschlossene Mietvertrag.
Bei Mietvertragsabschluss entsteht unsererseits gegenüber dem Mieter ein Honoraranspruch in Höhe von 2,38 Nettokaltmieten. Das Honorar versteht sich inkl. der gesetzlichen Mehrwertsteuer. Das Honorar ist verdient und fällig bei Mietvertragsabschluss.
Ihr Business verdient den besten Standort – wir finden ihn.
Sie sind interessiert?
Für weitere Objektinformationen oder Besichtigungstermine nutzen Sie einfach unser Formular. Alles weitere übernehmen wir.
Datenschutzeinstellungen
Auf unserer Webseite werden Cookies verwendet. Einige davon werden zwingend benötigt, während es uns andere ermöglichen, Ihre Nutzererfahrung auf unserer Webseite zu verbessern.
Essentiell
Essentielle Cookies werden für grundlegende Funktionen der Webseite benötigt. Dadurch ist gewährleistet, dass die Webseite einwandfrei funktioniert.
Name
QiCookieConsent
Anbieter
Enthält die vom Benutzer zugestimmten Cookie-Gruppen und prüft diese beim Seitenaufruf.
Zweck
Lebenszeit
1 Jahr
Statistik
Diese Gruppe beinhaltet alle Skripte für analytisches Tracking und zugehörige Cookies. Zudem kann es die allgemeine Performance der Besucher verbessern.
Name
_ga
Anbieter
Google Analytics
Zweck
Registriert eine eindeutige ID, die verwendet wird, um statistische Daten dazu, wie der Besucher die Website nutzt, zu generieren.
Lebenszeit
1 Jahr
Name
_gid
Anbieter
Google Analytics
Zweck
Registriert eine eindeutige ID, die verwendet wird, um statistische Daten dazu, wie der Besucher die Website nutzt, zu generieren.
Lebenszeit
1 Tag
Name
_gat
Anbieter
Google Analytics
Zweck
Wird von Google Analytics verwendet, um die Anforderungsrate einzuschränken.