Die angebotene Büro-, Praxis- oder Ladenfläche befindet sich im Erdgeschoss eines mehrgeschossigen Geschäftshauses. Das Gebäude wurde 1992/1993 errichtet und verfügt über eine Tiefgarage sowie mehrere Außenstellplätze für Kunden und Mitarbeiter.
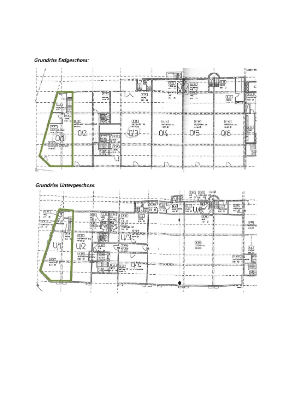
Die Fläche erstreckt sich über das Erdgeschoss und ist über eine innenliegende Treppe direkt mit dem Untergeschoss verbunden. Dies bietet flexible Nutzungsmöglichkeiten, etwa für Büro- oder Praxisräume, einen Verkaufsbereich mit Lager oder Sozialräumen im Untergeschoss.
Das Geschäftshaus zeichnet sich durch einen vielfältigen Mietermix aus. Im Haus befinden sich u.a. eine Apotheke, ein Fitnesscenter, verschiedene Facharztpraxen, eine Physiotherapie, ambulante Kranken- und Altenpflege sowie ein Elektrofachgeschäft. Dadurch profitieren Sie von einer hohen Besucherfrequenz und einem etablierten, gesundheitsorientierten Umfeld.
Die Lage bietet eine gute Erreichbarkeit sowohl für den Individualverkehr als auch für den öffentlichen Nahverkehr. Das Objekt eignet sich ideal für Dienstleister, Einzelhändler oder Praxen, die Wert auf eine zentrale Lage und ein professionelles Umfeld legen.
Coswig ist eine Große Kreisstadt mit ca. 20.800 Einwohnern im sächsischen Landkreis Meißen. Sie liegt an der Elbe, nord-westlich von Dresden, im dicht besiedelten Elbtal zwischen Meißen im Nordwesten und Radebeul bzw. Dresden im Südosten.
Infrastrukturell ist der Standort gut über die direkt vor dem Objekt befindliche Bushaltestelle Siedlerstraße angebunden. Hier verkehren die Buslinien 400, 401, 405 und 460. Dies gewährleistet nicht nur eine rasche Erreichbarkeit des Coswiger Stadtzentrums, sondern über den Bahnhof Coswig auch Ziele wie z. B. Meißen sowie Dresden.
großzügige Schaufensterfront für optimale Sichtbarkeit und natürliche Belichtung
Fliesenfußboden
Klimaanlage im Erdgeschoss
WC-Anlage sowie separate Sozialräume
Lagerflächen im Untergeschoss
Der Mietpreis ist als Basismietpreis zu verstehen und richtet sich nach Ausstattung sowie Vertragslaufzeit. Die Angaben verstehen sich zzgl. Nebenkosten und zzgl. gesetzl. Mehrwertsteuer.
Bei Mietvertragsabschluss entsteht unsererseits gegenüber dem Mieter ein Honoraranspruch in Höhe von 1,79 Nettokaltmieten. Das Honorar versteht sich inkl. der gesetzlichen Mehrwertsteuer. Das Honorar ist verdient und fällig bei Mietvertragsabschluss.
Der aktuelle Energieausweis wird nachgereicht. Alle in diesem Angebot enthaltenen Angaben, Darstellungen und Preise stammen ausschließlich vom Eigentümer oder eines Dritten. Eine Haftung unseres Unternehmens hierfür ist ausgeschlossen. Irrtum und die zwischenzeitliche Vermietung der Gewerbeeinheit bleiben vorbehalten. Dieses Exposé ist eine Vorabinformation, als Rechtsgrundlage gilt allein der abgeschlossene Mietvertrag.
Bei Mietvertragsabschluss entsteht unsererseits gegenüber dem Mieter ein Honoraranspruch in Höhe von 1,79 Nettokaltmieten. Das Honorar versteht sich inkl. der gesetzlichen Mehrwertsteuer. Das Honorar ist verdient und fällig bei Mietvertragsabschluss.
Ihr Business verdient den besten Standort – wir finden ihn.
Sie sind interessiert?
Für weitere Objektinformationen oder Besichtigungstermine nutzen Sie einfach unser Formular. Alles weitere übernehmen wir.
Datenschutzeinstellungen
Auf unserer Webseite werden Cookies verwendet. Einige davon werden zwingend benötigt, während es uns andere ermöglichen, Ihre Nutzererfahrung auf unserer Webseite zu verbessern.
Essentiell
Essentielle Cookies werden für grundlegende Funktionen der Webseite benötigt. Dadurch ist gewährleistet, dass die Webseite einwandfrei funktioniert.
Name
QiCookieConsent
Anbieter
Enthält die vom Benutzer zugestimmten Cookie-Gruppen und prüft diese beim Seitenaufruf.
Zweck
Lebenszeit
1 Jahr
Statistik
Diese Gruppe beinhaltet alle Skripte für analytisches Tracking und zugehörige Cookies. Zudem kann es die allgemeine Performance der Besucher verbessern.
Name
_ga
Anbieter
Google Analytics
Zweck
Registriert eine eindeutige ID, die verwendet wird, um statistische Daten dazu, wie der Besucher die Website nutzt, zu generieren.
Lebenszeit
1 Jahr
Name
_gid
Anbieter
Google Analytics
Zweck
Registriert eine eindeutige ID, die verwendet wird, um statistische Daten dazu, wie der Besucher die Website nutzt, zu generieren.
Lebenszeit
1 Tag
Name
_gat
Anbieter
Google Analytics
Zweck
Wird von Google Analytics verwendet, um die Anforderungsrate einzuschränken.