Außenansicht
Beispielansicht Büro
Außenansicht VI
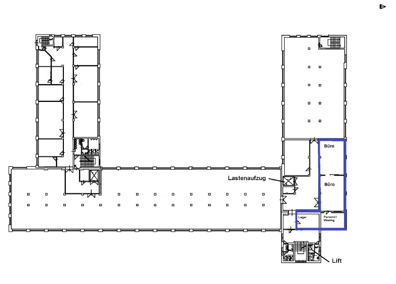
Grundriss
Außenansicht Beispielansicht Büro Außenansicht VI Grundriss

Industrieloft im Businesspark in Autobahnnähe

Objektnr. extern
R_O 23355
Objektart
Büro / Praxis / Ausstellungsräume
Ort
01139 Dresden
Verfügbarkeit
nach Absprache
Nettokaltmiete/m²
10,50 € zzgl. gesetzl. MwSt.
Nebenkosten/m²
4,50 € zzgl. gesetzl. MwSt.
Honorar
1,19 Nettokaltmieten inkl. gesetzl. MwSt.
Kaution
3 Bruttowarmmieten
Art des Energieausweises
Bedarfsausweis
Baujahr
1953
Gültig bis
28.08.2034
Energiekennwert Strom
19.20 kWh/(m²*a)
Energiekennwert Wärme
198.70 kWh/(m²*a)
<< Zurück zur Ergebnisliste
Die angebotene Bürofläche befindet sich im 1. Obergeschoss eines modernisierten Klinkerbaus, zentral gelegen in einem renommierten Businesspark. Die Fläche ist über ein großzügiges Treppenhaus sowie einen Personenaufzug barrierefrei erreichbar. Für logistische Anforderungen steht zusätzlich ein Lastenaufzug zur Verfügung.

Auf ca. 183 m² erstreckt sich eine moderne Bürofläche, die durch zwei großzügige, lichtdurchflutete Büroräume mit loftartigem Charakter und beeindruckender Raumhöhe besticht. Ein weiterer, vielseitig nutzbarer Raum dient derzeit als Meetingraum mit Teeküche, eignet sich dank seiner Größe jedoch ebenso hervorragend als Büro oder sozialer Kommunikationsbereich. Ein zusätzlicher Raum wird aktuell als Serverraum genutzt. Darüber hinaus steht auf der Etage eine weitere Lagerfläche von ca. 28 m² zur Anmietung zur Verfügung.

Die angegebenen Flächen basieren auf einer GIF Berechnung. Alle Raumgrößen verstehen sich zzgl. der anteiligen allgemeinen Flächen.
Der Businesspark befindet sich im Stadtteil Dresden-Mickten/Übigau. Eine gute Verkehrsanbindung ist durch die Nähe zur Autobahn A 4 gewährleistet. Das Stadtzentrum und die Altstadt sind mit dem Pkw oder Bus in ca. 10 Minuten gut zu erreichen. Der Stadtteil Mickten bietet neben Kindergärten, Grundschulen und Gymnasium auch zahlreiche Einkaufsmöglichkeiten. In wenigen Minuten ist der Elbepark mit Geschäften aller Branchen sowie Restaurants zu erreichen. Die nahegelegenen Elbwiesen laden zu Spaziergängen und zur Naherholung ein.
loftartiger Charakter
zwei getrennte WC-Anlagen für Damen und Herren zur gemeinschaftlichen Nutzung
Lagerraum mit ca. 28 m²
Lastenaufzug
barrierefrei
Fensterbankkanäle für Datenverkabelung
Stellplätze sind auf grundstückseigenem Parkplatz separat anmietbar
Der Mietpreis ist als Basismietpreis zu verstehen und richtet sich nach Ausstattung sowie Vertragslaufzeit. Die Angaben verstehen sich zzgl. Nebenkosten und zzgl. gesetzl. Mehrwertsteuer.

Bei Mietvertragsabschluss entsteht unsererseits gegenüber dem Mieter ein Honoraranspruch in Höhe von 1,19 Nettokaltmieten. Das Honorar versteht sich inkl. der gesetzlichen Mehrwertsteuer. Das Honorar ist verdient und fällig bei Mietvertragsabschluss.

Der aktuelle Energieausweis liegt vor. Alle in diesem Angebot enthaltenen Angaben, Darstellungen und Preise stammen ausschließlich vom Eigentümer oder eines Dritten. Eine Haftung unseres Unternehmens hierfür ist ausgeschlossen. Irrtum und die zwischenzeitliche Vermietung der Gewerbeeinheit bleiben vorbehalten. Dieses Exposé ist eine Vorabinformation, als Rechtsgrundlage gilt allein der abgeschlossene Mietvertrag.

RICHERT & OERTEL IMMOBILIEN GMBH
Tiergartenstraße 46, 01219 Dresden
Tel.: +49 (351) 43 31 20, Fax.: +49 (351) 43 31 212, E-Mail: info@r-o.de
AG Dresden, HRB 31382, Geschäftsführer Michael Oertel, Raiko Ebert
Bei Mietvertragsabschluss entsteht unsererseits gegenüber dem Mieter ein Honoraranspruch in Höhe von 1,19 Nettokaltmieten. Das Honorar versteht sich inkl. der gesetzlichen Mehrwertsteuer. Das Honorar ist verdient und fällig bei Mietvertragsabschluss.

Ihr Business verdient den besten Standort – wir finden ihn.

Sie sind
interessiert?

Für weitere Objektinformationen oder Besichtigungstermine nutzen Sie einfach unser Formular. Alles weitere übernehmen wir.

Alle mit * gekennzeichneten Felder sind Pflichtfelder.

Wenn Sie die im Kontaktformular eingegebenen Daten durch Klick auf den nachfolgenden Button übersenden, erklären Sie sich damit einverstanden, dass wir Ihre Angaben für die Beantwortung Ihrer Anfrage bzw. Kontaktaufnahme verwenden. Weitere Informationen zum Datenschutz finden Sie auch in der Datenschutzerklärung dieser Webseite.