Objektansicht
Innenansicht
Innenansicht
Innenansicht
Innenansicht
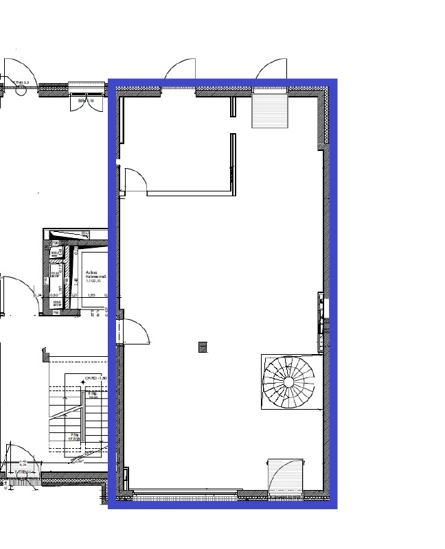
Grundriss_Erdgeschoss
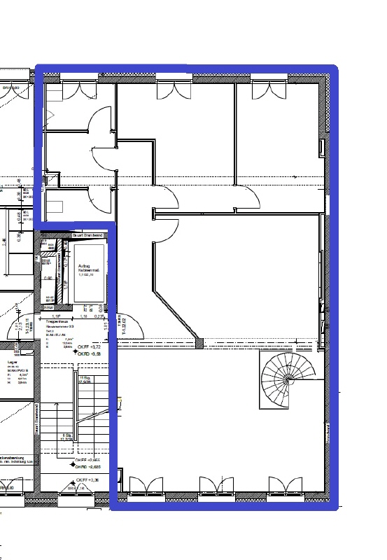
Grundriss_1Obergeschoss
Objektansicht Innenansicht Innenansicht Innenansicht
Innenansicht
+3

Aus Kantine wird Konzept – Raum für Ihre Geschäftsidee!

Objektnr. extern
R_O 23723
Objektart
Restaurant
Ort
01307 Dresden
Nettokaltmiete/m²
4.279,68 €
Nebenkosten/m²
4,00 € zzgl. gesetzl. MwSt.
Stellplatzmiete
60,00 € zzgl. gesetzl. MwSt.
Stellplatzanzahl
2
Honorar
1,19 Nettokaltmieten inkl. gesetzl. MwSt.
Kaution
3 Bruttowarmmieten
Art des Energieausweises
Bedarfsausweis
Baujahr
2019
Gültig bis
21.08.2029
Energiekennwert Strom
35.30 kWh/(m²*a)
Energiekennwert Wärme
112.40 kWh/(m²*a)
<< Zurück zur Ergebnisliste
Diese Gewerbefläche, die zuvor als Kantine genutzt wurde, bietet eine vielseitige und attraktive Möglichkeit für verschiedene Nutzungskonzepte. Die Fläche ist bereits mit einer modernen Einrichtung versehen, die vom Vormieter gegen eine Ablöse übernommen werden kann. Alternativ kann die Fläche auch zurückgebaut und umgestaltet werden, um anderen gastronomischen oder gewerblichen Zwecken zu dienen.

Die Räumlichkeiten erstrecken sich über zwei Etagen. Im Erdgeschoss befindet sich der bisherige Gastraum sowie der Bereich für die Küche. Über eine Wendeltreppe gelangt man in die obere Etage. Hier befinden sich Büro- und Pausenräume sowie eine WC-Anlage, getrennt für Damen und Herren.

Diese Gewerbeeinheit eignet sich ideal für Gastronomiebetriebe oder andere Konzepte, die von der vorhandenen Infrastruktur und der flexiblen Gestaltung profitieren möchten. Die Lage und Ausstattung gewährleisten eine sofortige und effiziente Nutzung oder eine individuelle Anpassung an spezifische Geschäftsmodelle.
Das Wohn- und Geschäftshaus befindet sich direkt an der hoch frequentierten Striesener Straße, nahe dem Verkehrsknotenpunkt Blasewitzer-/Fetscherstraße in Dresden-Johannstadt. Dieser Stadtteil ist durch seine direkte Nähe zu den Elbauen und dem Stadtzentrum eine begehrte Wohn- und Geschäftslage und überzeugt durch eine ausgezeichnete Infrastruktur sowie eine gute Verkehrsanbindung mit Nahverkehrsmitteln in die Dresdner Altstadt. Die nahe gelegene Waldschlösschenbrücke bietet für den Standort eine schnelle Verbindung zur BAB 4. Öffentliche Einrichtungen wie die Universitätsklinik, Banken, Post, Ärzte, Apotheken und Einkaufsmöglichkeiten befinden sich in unmittelbarer Nähe.
großzügige Fensterfront entlang der Striesener Straße
WC-Anlage
Lüftungsanlage
zwei Stellplätze in der Tiefgarage zur separaten Anmietung, Nachrüstung für E-Mobilität möglich
Lagerräume im Keller zur separaten Anmietung
er Mietpreis ist als Basismietpreis zu verstehen und richtet sich nach Ausstattung sowie Vertragslaufzeit. Die Angaben verstehen sich zzgl. Nebenkosten und zzgl. gesetzl. Mehrwertsteuer.

Bei Mietvertragsabschluss entsteht unsererseits gegenüber dem Mieter ein Honoraranspruch in Höhe von 1,19 Nettokaltmieten. Das Honorar versteht sich inkl. der gesetzlichen Mehrwertsteuer. Das Honorar ist verdient und fällig bei Mietvertragsabschluss.

Der aktuelle Energieausweis liegt vor. Alle in diesem Angebot enthaltenen Angaben, Darstellungen und Preise stammen ausschließlich vom Eigentümer oder eines Dritten. Eine Haftung unseres Unternehmens hierfür ist ausgeschlossen. Irrtum und die zwischenzeitliche Vermietung der Gewerbeeinheit bleiben vorbehalten. Dieses Exposé ist eine Vorabinformation, als Rechtsgrundlage gilt allein der abgeschlossene Mietvertrag.

RICHERT & OERTEL IMMOBILIEN GMBH
Tiergartenstraße 46, 01219 Dresden
Tel.: +49 (351) 43 31 20, Fax.: +49 (351) 43 31 212, E-Mail: info@r-o.de
AG Dresden, HRB 31382, Geschäftsführer Michael Oertel, Raiko Ebert
Bei Mietvertragsabschluss entsteht unsererseits gegenüber dem Mieter ein Honoraranspruch in Höhe von 1,19 Nettokaltmieten. Das Honorar versteht sich inkl. der gesetzlichen Mehrwertsteuer. Das Honorar ist verdient und fällig bei Mietvertragsabschluss.

Sie sind
interessiert?

Für weitere Objektinformationen oder Besichtigungstermine nutzen Sie einfach unser Formular. Alles weitere übernehmen wir.

Alle mit * gekennzeichneten Felder sind Pflichtfelder.

Wenn Sie die im Kontaktformular eingegebenen Daten durch Klick auf den nachfolgenden Button übersenden, erklären Sie sich damit einverstanden, dass wir Ihre Angaben für die Beantwortung Ihrer Anfrage bzw. Kontaktaufnahme verwenden. Weitere Informationen zum Datenschutz finden Sie auch in der Datenschutzerklärung dieser Webseite.