Objektansicht
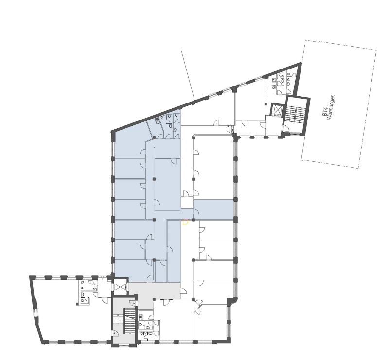
Grundriss Gesamtfläche mit ca 566,74qm
Grundriss Teilfläche mit ca 234,10qm
Grundriss Teilfläche mit ca 332,64qm
Objektansicht Grundriss Gesamtfläche mit ca 566,74qm Grundriss Teilfläche mit ca 234,10qm Grundriss Teilfläche mit ca 332,64qm

Moderne Bürofläche in Toplage – Raum für produktives Arbeiten und Wachstum!

Objektnr. extern
R_O 23772
Objektart
Büro / Praxis / Ausstellungsräume
Ort
01067 Dresden
Verfügbarkeit
ab sofort
Nettokaltmiete/m²
10,00 € zzgl. gesetzl. MwSt.
Nebenkosten/m²
3,00 € zzgl. gesetzl. MwSt.
Stellplatzmiete
80,00 € zzgl. gesetzl. MwSt.
Stellplatzanzahl
3
Honorar
laufzeitabhängig inkl. gesetzl. MwSt.
Kaution
3 Bruttowarmmieten
<< Zurück zur Ergebnisliste
Das Areal setzt sich aus vier in Reihe gebauten Gebäudeteilen zusammen. Die Gebäude sind über die Hinterhofstrukturen miteinander verbunden. Das Baujahr ist auf ca. 1901 datierbar und äußert sich demgemäß durch eine klar strukturierte symmetrische Fassade mit platzseitigen Balkonen. Im Gebäudeensemble befindet sich ein vielseitiger Mietermix aus Einzelhandels-, Büro- und Praxisflächen sowie das Theater- und Geschäftshaus "Dresdner FriedrichstaTT Palast".

Im 2. Obergeschoss steht eine großzügige Bürofläche mit einer Gesamtgröße von ca. 566,74 m² zur Verfügung. Die Fläche überzeugt durch ihre flexible Raumaufteilung, die optimale Bedingungen für unterschiedliche Nutzungsanforderungen bietet. Eine Teilung der Gesamtfläche ist wie folgt möglich:
Einheit 1 mit ca. 234,10 m²
Einheit 2 mit ca. 332,64 m².

Die Flächen eignen sich ideal für Einzel- oder Teamarbeitsplätze, Besprechungsräume oder offene Arbeitsbereiche. Große Fensterflächen sorgen für helle, freundliche Räume und ein angenehmes Arbeitsklima.

Je nach Bedarf können die Einheiten einzeln oder zusammen angemietet werden, sodass sich hier sowohl für kleinere Unternehmen als auch für größere Firmen eine passende Lösung findet.

Im Untergeschoss befindet sich außerdem eine Tiefgarage, in der aktuelle zusätzlich drei Stellplätze separat angemietet werden können.
Die Gewerbeeinheit befindet sich in der Dresdner Innenstadt, unmittelbar im Musikerviertel, etwa 10 Gehminuten von der Altstadt entfernt. Die zentrale Lage bedingt eine ausgezeichnete Anbindung an den öffentlichen Nahverkehr, so befinden sich die Straßenbahn- und S-Bahn- Haltestellen unmittelbar in Gebäudenähe. Der Hauptbahnhof ist mit dem Auto in ca. 5 Minuten, der Flughafen in ca. 15 Minuten erreichbar. Zur Autobahn A4 / A17 sind es mit dem Auto ca. 10 Minuten. Der nahegelegene und neugestaltete Postplatz und der ebenfalls schnell erreichbare Alt- und Neumarkt mit den historisch sanierten Gebäuden und der gut erschlossenen Infrastruktur spricht für das Objekt. In direkter Umgebung befindet sich die Musikhochschule Carl-Maria-von-Weber, welche sich eines guten überregionalen Rufes erfreut. Die Mikrolage ist durch die Bautätigkeiten in den letzten Jahren aufgewertet worden.
Bürofläche in zentraler Lage direkt am Wettiner Platz
flexible Gestaltungsmöglichkeiten (z.B. Großraum, Einzel- oder Teambüro)
getrennte Sanitäreinheiten für Damen und Herren
zwei Teeküchen vorhanden
großer Meetingraum
drei Stellplätze in der Tiefgarage separat anmietbar
Personenaufzug im Gebäude mit direktem Zugang zur Einheit
Öffentliche Verkehrsmittel fußläufig erreichbar
Der Mietpreis ist als Basismietpreis zu verstehen und richtet sich nach Ausstattung sowie Vertragslaufzeit. Die Angaben verstehen sich zzgl. Nebenkosten und zzgl. gesetzl. Mehrwertsteuer.

Bei Mietvertragsabschluss entsteht unsererseits gegenüber dem Mieter ein Honoraranspruch in Höhe von:
Honorarfrei: ab einer Mietvertragslaufzeit von 60 Monaten
0,6 Nettokaltmieten: bei einer Mietvertragslaufzeit zwischen 36 und weniger als 60 Monaten
1,19 Nettokaltmieten: bei einer Mietvertragslaufzeit zwischen 25 und weniger als 36 Monaten
2,38 Nettokaltmieten: bei einer Mietvertragslaufzeit weniger als 25 Monaten
Das Honorar versteht sich inkl. der gesetzlichen Mehrwertsteuer. Das Honorar ist verdient und fällig bei Mietvertragsabschluss.

Das Objekt ist ein Baudenkmal. Es liegt kein Energieausweis vor. Alle in diesem Angebot enthaltenen Angaben, Darstellungen und Preise stammen ausschließlich vom Eigentümer oder eines Dritten. Eine Haftung unseres Unternehmens hierfür ist ausgeschlossen. Irrtum und die zwischenzeitliche Vermietung der Gewerbeeinheit bleiben vorbehalten. Dieses Exposé ist eine Vorabinformation, als Rechtsgrundlage gilt allein der abgeschlossene Mietvertrag.

RICHERT & OERTEL IMMOBILIEN GMBH
Tiergartenstraße 46, 01219 Dresden
Tel.: +49 (351) 43 31 20, Fax.: +49 (351) 43 31 212, E-Mail: info@r-o.de
AG Dresden, HRB 31382, Geschäftsführer Michael Oertel, Raiko Ebert

Ihr Business verdient den besten Standort – wir finden ihn.

Sie sind
interessiert?

Für weitere Objektinformationen oder Besichtigungstermine nutzen Sie einfach unser Formular. Alles weitere übernehmen wir.

Alle mit * gekennzeichneten Felder sind Pflichtfelder.

Wenn Sie die im Kontaktformular eingegebenen Daten durch Klick auf den nachfolgenden Button übersenden, erklären Sie sich damit einverstanden, dass wir Ihre Angaben für die Beantwortung Ihrer Anfrage bzw. Kontaktaufnahme verwenden. Weitere Informationen zum Datenschutz finden Sie auch in der Datenschutzerklärung dieser Webseite.