Objektansicht
Objektansicht
Ausblick Stellplätze
Innenansicht Treppenhaus
Innenansicht
Innenansicht
Pausenraum
WC Anlage
Duschen
Innenansicht
Innenansicht
Innenansicht
Innenansicht
Kellerfläche
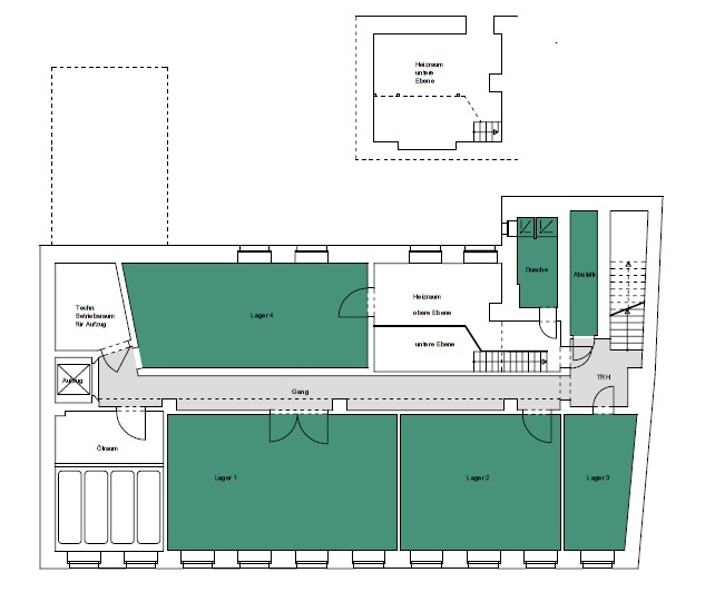
Grundriss_KG
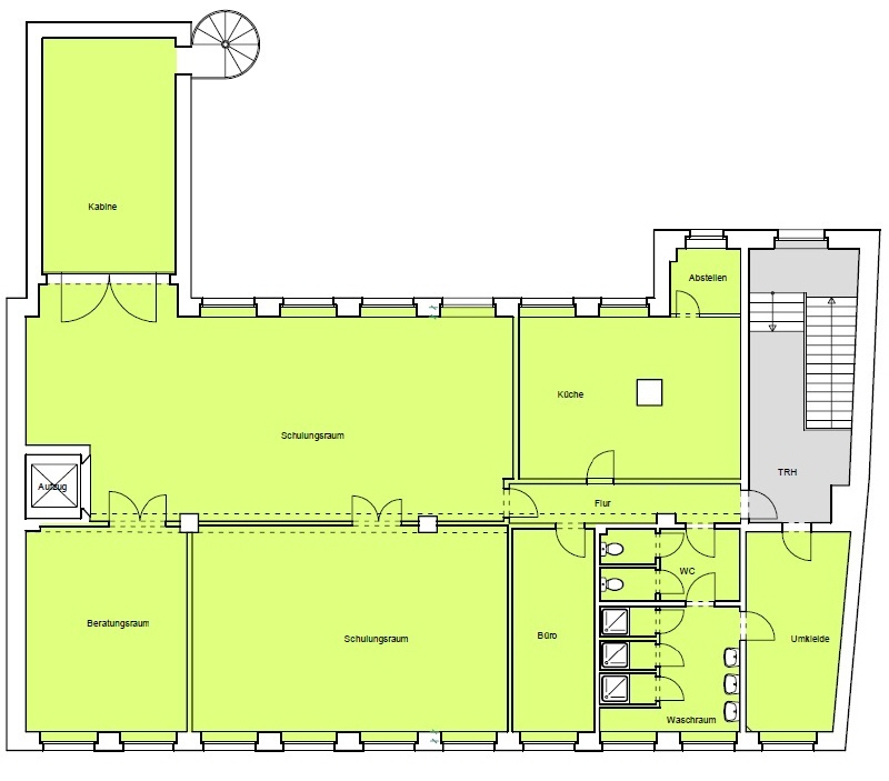
Grundriss_EG
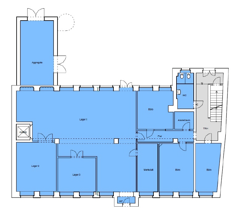
Grundriss_OG
Objektansicht Objektansicht Ausblick Stellplätze Innenansicht Treppenhaus
Innenansicht
+13

Ein Ort für Ideen: Werkstatt, Produktion, Schulung, Sport und kreative Arbeitswelten.

Objektnr. extern
R_O 23776
Objektart
Büro / Praxis / Ausstellungsräume
Ort
01099 Dresden
Verfügbarkeit
nach Absprache
Nettokaltmiete/m²
9,90 € zzgl. gesetzl. MwSt.
Nebenkosten/m²
3,50 € zzgl. gesetzl. MwSt.
Honorar
honorarfrei
Kaution
3 Bruttowarmmieten
<< Zurück zur Ergebnisliste
Die Gewerbefläche befindet sich in ruhiger Innenhoflage und ist sowohl über die Königsbrücker Straße als auch über die Eberswalder Straße befahrbar. Das Gebäude erstreckt sich über ein Kellergeschoss sowie zwei Vollgeschosse und überzeugt durch eine ansprechende, funktionale Architektur.

Die Gewerbefläche erstreckt sich über das Untergeschoss mit ca. 173,78 m², das Erdgeschoss mit ca. 335,29 m² sowie das 1. Obergeschoss mit ca. 335,80 m² und bietet damit Nutzungsmöglichkeiten auf drei Ebenen.

Die Räumlichkeiten bieten vielseitige Nutzungsmöglichkeiten, ob Werkstatt- oder Produktionsflächen, Schulungsräume, Sportflächen, Großraumbüros bzw. Co-Working-Spaces, klassische Büros sowie inspirierende Atelierflächen. Hier finden Sie Räume, die mehr können!

Große Fensterfronten sorgen für optimale natürliche Belichtung, während die solide Bauweise ein angenehmes und konstantes Raumklima gewährleistet.

Dank der zentralen Lage profitieren Mieter von einer hervorragenden Anbindung an den öffentlichen Nahverkehr sowie einer guten Erreichbarkeit für Kunden und Mitarbeiter.
Der Gewerbekomplex befindet sich in der Dresdner Neustadt, einem Gründerzeitviertel, welches durch bauliche Attraktivität und dichte Besiedlung geprägt ist. Die Infrastrukturbedingungen sind hervorragend. Haltestellen des ÖPNV sind in der Nähe. Die Königsbrücker Straße ist die Haupttangente für die Nord-Süd-Verbindung und führt zum nahegelegenen Flughafen. Das Stadtzentrum ist unweit entfernt. Die Königsbrücker Straße gilt innerhalb der Äußeren Neustadt als gute Lauf- und Geschäftslage. Der Bahnhof Neustadt befindet sich in fußläufiger Entfernung.
Der Mietpreis ist als Basismietpreis zu verstehen und richtet sich nach Ausstattung sowie Vertragslaufzeit. Die Angaben verstehen sich zzgl. Nebenkosten und zzgl. gesetzl. Mehrwertsteuer.

Das Objekt wird honorarfrei angeboten.

Der aktuelle Energieausweis wird nachgereicht. Alle in diesem Angebot enthaltenen Angaben, Darstellungen und Preise stammen ausschließlich vom Eigentümer oder eines Dritten. Eine Haftung unseres Unternehmens hierfür ist ausgeschlossen. Irrtum und die zwischenzeitliche Vermietung der Gewerbeeinheit bleiben vorbehalten. Dieses Exposé ist eine Vorabinformation, als Rechtsgrundlage gilt allein der abgeschlossene Mietvertrag.

RICHERT & OERTEL IMMOBILIEN GMBH
Tiergartenstraße 46, 01219 Dresden
Tel.: +49 (351) 43 31 20, Fax.: +49 (351) 43 31 212, E-Mail: info@r-o.de
AG Dresden, HRB 31382, Geschäftsführer Michael Oertel, Raiko Ebert

Ihr Business verdient den besten Standort – wir finden ihn.

Sie sind
interessiert?

Für weitere Objektinformationen oder Besichtigungstermine nutzen Sie einfach unser Formular. Alles weitere übernehmen wir.

Alle mit * gekennzeichneten Felder sind Pflichtfelder.

Wenn Sie die im Kontaktformular eingegebenen Daten durch Klick auf den nachfolgenden Button übersenden, erklären Sie sich damit einverstanden, dass wir Ihre Angaben für die Beantwortung Ihrer Anfrage bzw. Kontaktaufnahme verwenden. Weitere Informationen zum Datenschutz finden Sie auch in der Datenschutzerklärung dieser Webseite.