Objektansicht
Objektansicht
Objektansicht
Tor
Innenansicht Halle
Innenansicht Kran
Innenansicht Büro
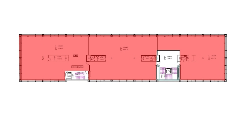
Grundriss Halle
Grundriss Umkleide, Sozialflächen
Grundriss Büroflächen
Objektansicht Objektansicht Objektansicht Tor
Innenansicht Halle
+6

Moderne Produktions- und Logistikimmobilie mit flexiblen Hallen-, Büro- und Sozialflächen in Reinsberg

Objektnr. extern
R_O 24021
Objektart
Prod./ Lager / Gewerbehallen
Ort
09629 Reinsberg
Verfügbarkeit
ab sofort
Nettokaltmiete/m²
auf Anfrage
Honorar
1,19 Nettokaltmieten inkl. gesetzl. MwSt.
Kaution
3 Bruttowarmmieten
<< Zurück zur Ergebnisliste
Die angebotene Halle 6 umfasst Erdgeschoss, 1. Obergeschoss und 3. Obergeschoss und bietet insgesamt moderne, flexibel nutzbare Flächen für Produktion, Lager und Verwaltung. Die Hallenflächen belaufen sich auf ca. 6.777,55 m² und sind für industrielle sowie logistische Nutzungen geeignet. Ergänzend stehen ca. 394,35 m² Sozialflächen (u. a. Umkleiden, Sanitärbereiche und Pausenräume) zur Verfügung, die einen funktionalen und mitarbeiterfreundlichen Betriebsablauf ermöglichen.

Zusätzlich sind ca. 941,69 m² Büroflächen inklusive Nebennutzflächen vorhanden, die sich ab einer Größe von etwa 271,06 m² sinnvoll teilen lassen und somit sowohl Einzel- als auch Mehrnutzerkonzepte erlauben. Die Bürobereiche eignen sich zur Unterbringung von Verwaltung, Disposition, Technik oder projektbezogenen Teams und können je nach Bedarf als Einzel-, Kombi- oder Open-Space-Büros gestaltet werden. Insgesamt bietet Halle 6 damit ein ausgewogenes Verhältnis aus Hallen-, Sozial- und Büroflächen und ist ideal für Unternehmen, die Produktions- oder Lagerprozesse mit integrierten Verwaltungsstrukturen an einem Standort bündeln möchten.
Die Gemeinde Reinsberg liegt im Landkreis Mittelsachsen, etwa 35 km westlich von Dresden zwischen den Städten Freiberg und Meißen.

Reinsberg liegt verkehrsgünstig nahe dem Autobahndreieck Nossen, unweit der Bundesautobahnen A4 und A14; die Anschlussstelle Nossen-Ost (A14) ist etwa 2 km, die Anschlussstelle Siebenlehn (A4) rund 4 km entfernt, zudem besteht Anbindung über die Bundesstraßen B101 und B173.
Der Mietpreis ist als Basismietpreis zu verstehen und richtet sich nach Ausstattung sowie Vertragslaufzeit. Die Angaben verstehen sich zzgl. Nebenkosten und zzgl. gesetzl. Mehrwertsteuer.

Bei Mietvertragsabschluss entsteht unsererseits gegenüber dem Mieter ein Honoraranspruch in Höhe von 1,19 Nettokaltmieten. Das Honorar versteht sich inkl. der gesetzlichen Mehrwertsteuer. Das Honorar ist verdient und fällig bei Mietvertragsabschluss.

Der aktuelle Energieausweis wird nachgereicht. Alle in diesem Angebot enthaltenen Angaben, Darstellungen und Preise stammen ausschließlich vom Eigentümer oder eines Dritten. Eine Haftung unseres Unternehmens hierfür ist ausgeschlossen. Irrtum und die zwischenzeitliche Vermietung der Gewerbeeinheit bleiben vorbehalten. Dieses Exposé ist eine Vorabinformation, als Rechtsgrundlage gilt allein der abgeschlossene Mietvertrag.

RICHERT & OERTEL IMMOBILIEN GMBH
Tiergartenstraße 46, 01219 Dresden
Tel.: +49 (351) 43 31 20, Fax.: +49 (351) 43 31 212, E-Mail: info@r-o.de
AG Dresden, HRB 31382, Geschäftsführer Michael Oertel, Raiko Ebert

Ihr Business verdient den besten Standort – wir finden ihn.

Sie sind
interessiert?

Für weitere Objektinformationen oder Besichtigungstermine nutzen Sie einfach unser Formular. Alles weitere übernehmen wir.

Alle mit * gekennzeichneten Felder sind Pflichtfelder.

Wenn Sie die im Kontaktformular eingegebenen Daten durch Klick auf den nachfolgenden Button übersenden, erklären Sie sich damit einverstanden, dass wir Ihre Angaben für die Beantwortung Ihrer Anfrage bzw. Kontaktaufnahme verwenden. Weitere Informationen zum Datenschutz finden Sie auch in der Datenschutzerklärung dieser Webseite.