Objektansicht
Innenansicht
Innenansicht
Innenansicht
Innenansicht
Innenansicht
Innenansicht
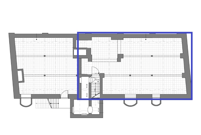
Grundriss
Objektansicht Innenansicht Innenansicht Innenansicht
Innenansicht
+4

Zentral. Geräumig. Ideal für Lager und Archiv!

Objektnr. extern
R_O 24162
Objektart
Lagerfläche
Ort
01097 Dresden
Verfügbarkeit
ab sofort
Nettokaltmiete/m²
auf Anfrage
Honorar
1,79 Nettokaltmieten inkl. gesetzl. MwSt.
Kaution
3 Bruttowarmmieten
Art des Energieausweises
Bedarfsausweis
Baujahr
1900
Gültig bis
15.02.2027
Endenergiebedarf
76 kWh/(m²*a)
<< Zurück zur Ergebnisliste
Lager- und Archivflächen gesucht?

Das Rückgebäude ist Teil eines Gebäudeensembles, welches aus drei Bürogebäuden auf einem begrünten Grundstück mit Pkw-Stellplätzen in zentraler und dennoch ruhiger Lage besteht.

Das Gebäude erstreckt sich über ein Untergeschoss, ein Erdgeschoss sowie zwei Obergeschosse.

Die beheizte und sanierte Lager- und Archivfläche befindet sich im Untergeschoss und verfügt über eine Gesamtmietfläche von ca. 127,03 m².
Das Objekt befindet sich in einer exponierten Wohn- und Geschäftslage mit kurzer fußläufiger Distanz zum Bahnhof Neustadt sowie zum Albertplatz als hochfrequentierten Verkehrsknotenpunkt der Stadt Dresden. Die Infrastrukturbedingungen sind durch die Anbindung an den ÖPNV, den überregionalen Bahnverkehr sowie die schnelle Erreichbarkeit der Autobahn A4 sowie des Flughafen exzellent. Zudem verfügt der Standort über vielfältige Einkaufsmöglichkeiten, gastronomischen Einrichtungen sowie Dienstleistungsunternehmen.
Der Mietpreis ist als Basismietpreis zu verstehen und richtet sich nach Ausstattung sowie Vertragslaufzeit. Die Angaben verstehen sich zzgl. Nebenkosten und zzgl. gesetzl. Mehrwertsteuer.

Bei Mietvertragsabschluss entsteht unsererseits gegenüber dem Mieter ein Honoraranspruch in Höhe von 1,79 Nettokaltmieten. Das Honorar versteht sich inkl. der gesetzlichen Mehrwertsteuer. Das Honorar ist verdient und fällig bei Mietvertragsabschluss.

Der aktuelle Energieausweis liegt vor. Alle in diesem Angebot enthaltenen Angaben, Darstellungen und Preise stammen ausschließlich vom Eigentümer oder eines Dritten. Eine Haftung unseres Unternehmens hierfür ist ausgeschlossen. Irrtum und die zwischenzeitliche Vermietung der Gewerbeeinheit bleiben vorbehalten. Dieses Exposé ist eine Vorabinformation, als Rechtsgrundlage gilt allein der abgeschlossene Mietvertrag.

RICHERT & OERTEL IMMOBILIEN GMBH
Tiergartenstraße 46, 01219 Dresden
Tel.: +49 (351) 43 31 20, Fax.: +49 (351) 43 31 212, E-Mail: info@r-o.de
AG Dresden, HRB 31382, Geschäftsführer Michael Oertel, Raiko Ebert
Bei Mietvertragsabschluss entsteht unsererseits gegenüber dem Mieter ein Honoraranspruch in Höhe von 1,79 Nettokaltmieten. Das Honorar versteht sich inkl. der gesetzlichen Mehrwertsteuer. Das Honorar ist verdient und fällig bei Mietvertragsabschluss.

Ihr Business verdient den besten Standort – wir finden ihn.

Sie sind
interessiert?

Für weitere Objektinformationen oder Besichtigungstermine nutzen Sie einfach unser Formular. Alles weitere übernehmen wir.

Alle mit * gekennzeichneten Felder sind Pflichtfelder.

Wenn Sie die im Kontaktformular eingegebenen Daten durch Klick auf den nachfolgenden Button übersenden, erklären Sie sich damit einverstanden, dass wir Ihre Angaben für die Beantwortung Ihrer Anfrage bzw. Kontaktaufnahme verwenden. Weitere Informationen zum Datenschutz finden Sie auch in der Datenschutzerklärung dieser Webseite.