Außenansicht
Gebäudeansicht
Zufahrt Tiefgarage
Eingangsbereich
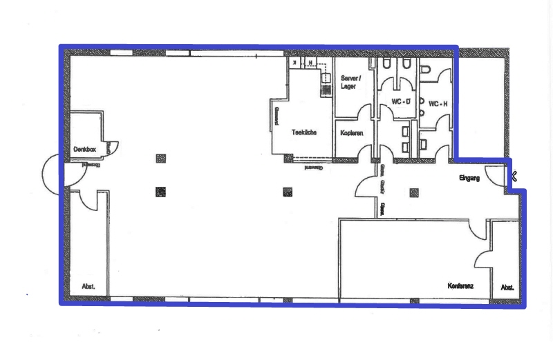
Grundriss
Grundriss Ausbauvariante
Außenansicht Gebäudeansicht Zufahrt Tiefgarage Eingangsbereich
Grundriss
+2

Großraumbüro mit Archivmöglichkeit

Objektnr. extern
R_O 4886
Objektart
Büro / Praxis / Ausstellungsräume
Ort
01187 Dresden
Verfügbarkeit
ab sofort
Nettokaltmiete/m²
9,45 € zzgl. gesetzl. MwSt.
Nebenkosten/m²
2,75 € zzgl. gesetzl. MwSt.
Stellplatzanzahl
5
Honorar
laufzeitabhängig inkl. gesetzl. MwSt.
Kaution
3 Bruttowarmmieten
Art des Energieausweises
Bedarfsausweis
Baujahr
1996
Gültig bis
11.05.2031
Endenergiebedarf
125 kWh/(m²*a)
Energiekennwert Strom
18.00 kWh/(m²*a)
Energiekennwert Wärme
83.00 kWh/(m²*a)
<< Zurück zur Ergebnisliste
Unter modernsten Aspekten der Planung präsentiert sich das Bürogebäude. Die flexible Bauweise lässt eine Raumunterteilung nach Ihren Wünschen zu. Durch den hohen Vermietungsstand ist das Gebäude belebt und somit sehr attraktiv.

Über einen ansprechenden Eingangsbereich und eine repräsentative Lobby gelangt der Mieter bzw. seine Besucher in die Mietflächen. Im Objekt befindet sich des Weiteren eine Kantine. Ausreichende Parkplätze sind durch eine Tiefgarage und oberirdische Stellplätze geboten.

Die angebotene Fläche kann wahlweise im aktuellen Zuschnitt übernommen oder – gegen einen Aufpreis – individuell an Ihre Anforderungen angepasst werden. Ein Umbau gemäß der Ausbauvariante (siehe Grundriss) ist möglich und bietet Ihnen die Chance, die Raumaufteilung optimal auf Ihre Arbeitsabläufe abzustimmen.

So entscheiden Sie selbst, ob Sie von der großzügigen Großraumvariante profitieren oder eine maßgeschneiderte Aufteilung bevorzugen.

Der Eigentümer wünscht eine Mietvertragslaufzeit von mindestens drei Jahren.
Die Chemnitzer Straße/Bamberger Straße befindet sich in direkter Verlängerung der Budapester Straße, einer der wichtigsten Verkehrsachsen in Dresden. Das Umfeld ist von einer dichten Bebauung und einer Vielzahl von Bürokomplexen geprägt. Unweit liegen sowohl die Universität als auch der Bahnhof 'Dresden-Plauen'. Das Rathaus und der Hauptbahnhof sind jeweils ca. 2,5 km entfernt.

Die Anbindungen an den öffentlichen Nahverkehr ist im direkten Umfeld gegeben. Mit dem Anschluß an die Bundesautobahn A17 wurde die Verkehrsanbindung weiter verbessert.
ein großer Büroraum mit abgetrennter Denkbox
ein Konferenzimmer
zwei Abstellzimmer
Bodentanks bzw. Kabelkanäle zur Installationsführung
getrennte WC-Anlagen und eine Dusche
Teeküche
jeweils ein Kopier- und Serverraum
Der Mietpreis ist als Basismietpreis zu verstehen und richtet sich nach Ausstattung sowie Vertragslaufzeit. Die Angaben verstehen sich zzgl. Nebenkosten und zzgl. gesetzl. Mehrwertsteuer.

Bei Mietvertragsabschluss entsteht unsererseits gegenüber dem Mieter ein Honoraranspruch in Höhe von:
Honorarfrei: ab einer Mietvertragslaufzeit von 36 Monaten
1,19 Nettokaltmieten: bei einer Mietvertragslaufzeit bis 35 Monaten
Das Honorar versteht sich inkl. der gesetzlichen Mehrwertsteuer. Das Honorar ist verdient und fällig bei Mietvertragsabschluss.

Der aktuelle Energieausweis liegt vor. Alle in diesem Angebot enthaltenen Angaben, Darstellungen und Preise stammen ausschließlich vom Eigentümer oder eines Dritten. Eine Haftung unseres Unternehmens hierfür ist ausgeschlossen. Irrtum und die zwischenzeitliche Vermietung der Gewerbeeinheit bleiben vorbehalten. Dieses Exposé ist eine Vorabinformation, als Rechtsgrundlage gilt allein der abgeschlossene Mietvertrag.

RICHERT & OERTEL IMMOBILIEN GMBH
Tiergartenstraße 46, 01219 Dresden
Tel.: +49 (351) 43 31 20, Fax.: +49 (351) 43 31 212, E-Mail: info@r-o.de
AG Dresden, HRB 31382, Geschäftsführer Michael Oertel, Raiko Ebert
Bei Mietvertragsabschluss entsteht unsererseits gegenüber dem Mieter ein Honoraranspruch in Höhe von:
Honorarfrei: ab einer Mietvertragslaufzeit von 36 Monaten
1,19 Nettokaltmieten: bei einer Mietvertragslaufzeit bis 35 Monaten
Das Honorar versteht sich inkl. der gesetzlichen Mehrwertsteuer. Das Honorar ist verdient und fällig bei Mietvertragsabschluss.

Ihr Business verdient den besten Standort – wir finden ihn.

Sie sind
interessiert?

Für weitere Objektinformationen oder Besichtigungstermine nutzen Sie einfach unser Formular. Alles weitere übernehmen wir.

Alle mit * gekennzeichneten Felder sind Pflichtfelder.

Wenn Sie die im Kontaktformular eingegebenen Daten durch Klick auf den nachfolgenden Button übersenden, erklären Sie sich damit einverstanden, dass wir Ihre Angaben für die Beantwortung Ihrer Anfrage bzw. Kontaktaufnahme verwenden. Weitere Informationen zum Datenschutz finden Sie auch in der Datenschutzerklärung dieser Webseite.