Beispielfoto
Objektansicht
Ansicht Kantine
Ansicht Kantine
Objektansicht
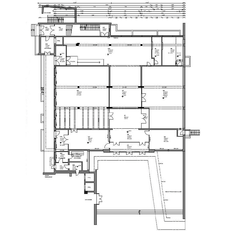
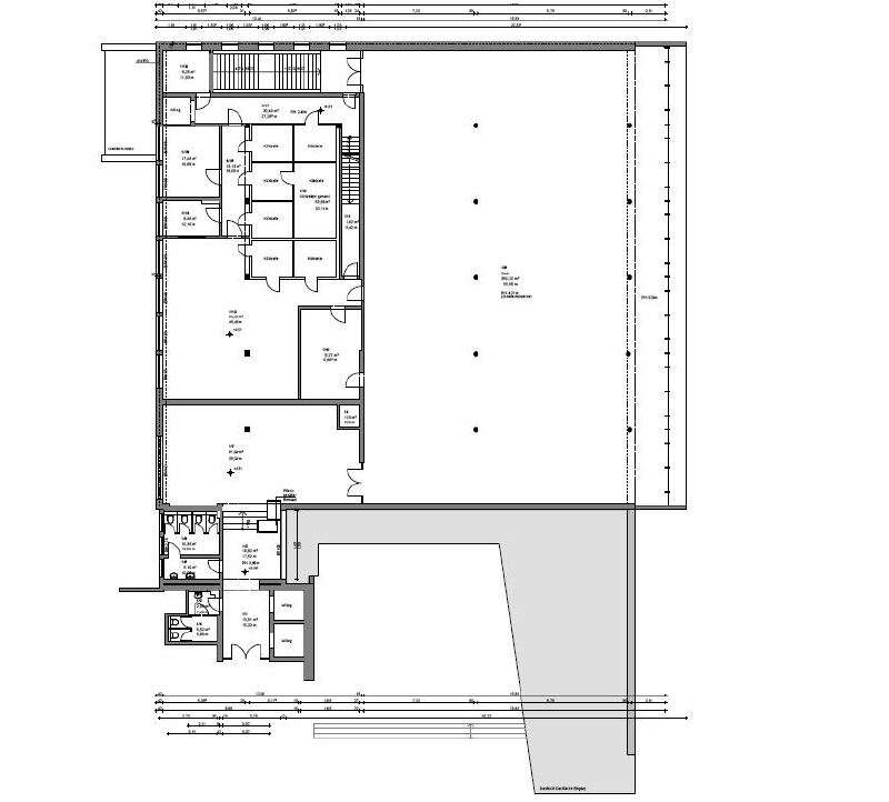
Grundriss Erdgeschoss
Grundriss 1 Obergeschoss
Grundriss 2 Obergeschoss
Beispielfoto Objektansicht Ansicht Kantine Ansicht Kantine
Objektansicht
+4

Flexible Raumlösungen für Ihren Erfolg!

Objektnr. extern
R_O 9119
Objektart
Prod./ Lager / Gewerbehallen
Ort
01099 Dresden
Verfügbarkeit
nach Vereinbarung
Nettokaltmiete/m²
8,00 € zzgl. gesetzl. MwSt.
Honorar
1,79 Nettokaltmieten inkl. gesetzl. MwSt.
Kaution
3 Bruttowarmmieten
Art des Energieausweises
Bedarfsausweis
Baujahr
1964
Energiekennwert Strom
158.50 kWh/(m²*a)
Energiekennwert Wärme
99.60 kWh/(m²*a)
<< Zurück zur Ergebnisliste
Das ehemalige Postgebäude steht in freier Bebauung, zentral in der Dresdner Neustadt. Der Gebäudekomplex, bestehend aus einem hohen Hauptbau und einem anschließenden niedrigen Anbau, wurde von 1962 bis 1964 von Wolfram Starke und Kurt Nowothny errichtet.

Das Hauptgebäude ist sechsgeschossig. Während die Fassade die Horizontale betont, unterstreichen die hochsenkrechten, schmalen Betonstreben des Treppenhauses die Vertikale. Das Gebäude ist ein Beispiel für die Dresdner Moderne der 1960er Jahre.

Der überwiegende Teil des Gebäudeensembles wurde in den neunziger Jahren revitalisiert. Namhafte Mieter wie die Postbank, eine national und international tätige Ingenieurgesellschaft sowie eine Behörde des Freistaates Sachsen haben sich diesen Standort bereits gesichert. Das Hauptgebäude ist somit voll vermietet.

Die angebotene Fläche befindet sich im ehemaligen Kantinengebäude, welches mit insgesamt ca. 2.010 m² Fläche viel Platz für individuelle Konzepte bietet.

Die vakanten Flächen verteilen sich wie folgt über die Etagen:

Erdgeschoss: ca. 857 m²
1. Obergeschoss: ca. 983 m²
2. Obergeschoss / Dachgeschoss: ca. 170 m²
Der Gewerbekomplex befindet sich in der Dresdner Neustadt, einem Gründerzeitviertel, welches durch bauliche Attraktivität und dichte Besiedlung geprägt ist. Die Infrastrukturbedingungen sind hervorragend. Haltestellen des ÖPNV sind in der Nähe. Die Königsbrücker Straße ist die Haupttangente für die Nord-Süd-Verbindung und führt zum nahegelegenen Flughafen. Das Stadtzentrum ist unweit entfernt. Die Königsbrücker Straße gilt innerhalb der Äußeren Neustadt als gute Lauf- und Geschäftslage. Der Bahnhof Neustadt befindet sich in fußläufiger Entfernung.
Rampenandienung
teilweise Parkett-/ Fliesenfußboden & PVC-Belag
Außenstellplätze für Sie und Ihre Kunden zur separaten Anmietung verfügbar
Fläche individuell nach Mieterwunsch ausbaubar
Der Mietpreis ist als Basismietpreis zu verstehen und richtet sich nach Ausstattung sowie Vertragslaufzeit. Die Angaben verstehen sich zzgl. Nebenkosten und zzgl. gesetzl. Mehrwertsteuer.

Bei Mietvertragsabschluss entsteht unsererseits gegenüber dem Mieter ein Honoraranspruch in Höhe von 1,79 Nettokaltmieten. Das Honorar versteht sich inkl. der gesetzlichen Mehrwertsteuer. Das Honorar ist verdient und fällig bei Mietvertragsabschluss.

Der aktuelle Energieausweis wird nachgereicht. Alle in diesem Angebot enthaltenen Angaben, Darstellungen und Preise stammen ausschließlich vom Eigentümer oder eines Dritten. Eine Haftung unseres Unternehmens hierfür ist ausgeschlossen. Irrtum und die zwischenzeitliche Vermietung der Gewerbeeinheit bleiben vorbehalten. Dieses Exposé ist eine Vorabinformation, als Rechtsgrundlage gilt allein der abgeschlossene Mietvertrag.

RICHERT & OERTEL IMMOBILIEN GMBH
Tiergartenstraße 46, 01219 Dresden
Tel.: +49 (351) 43 31 20, Fax.: +49 (351) 43 31 212, E-Mail: info@r-o.de
AG Dresden, HRB 31382, Geschäftsführer Michael Oertel, Raiko Ebert
Bei Mietvertragsabschluss entsteht unsererseits gegenüber dem Mieter ein Honoraranspruch in Höhe von 1,79 Nettokaltmieten. Das Honorar versteht sich inkl. der gesetzlichen Mehrwertsteuer. Das Honorar ist verdient und fällig bei Mietvertragsabschluss.

Ihr Business verdient den besten Standort – wir finden ihn.

Sie sind
interessiert?

Für weitere Objektinformationen oder Besichtigungstermine nutzen Sie einfach unser Formular. Alles weitere übernehmen wir.

Alle mit * gekennzeichneten Felder sind Pflichtfelder.

Wenn Sie die im Kontaktformular eingegebenen Daten durch Klick auf den nachfolgenden Button übersenden, erklären Sie sich damit einverstanden, dass wir Ihre Angaben für die Beantwortung Ihrer Anfrage bzw. Kontaktaufnahme verwenden. Weitere Informationen zum Datenschutz finden Sie auch in der Datenschutzerklärung dieser Webseite.